一、應用背景
模板腳手架工程是混凝土結構施工最基本的施工工序,直接影響工程結構質量。目前,在大部分橋梁現澆段施工中,模架工程仍采用傳統施工工藝,缺少詳細的深化設計,以致生產效率低下、質量安全問題頻發、進度及成本管控困難,嚴重依賴勞務分包或工人,難以進行精細化管理。
近幾年,BIM精細化建模、模型交換共享及參數化設計等技術的日益成熟,為應用BIM技術進行模板腳手架深化設計提供了必要條件。通過洛陽新伊大街、G311國道等多個項目實踐,使用BIM軟件結合模架布置規則,來進行參數化的模架布置設計,確定詳細的深化設計方案,進而對模板腳手架施工進行精細化的管理,解決目前模架設計施工中的問題已經成為現實。
二、重難點分析
☆ 策劃不易深入
項目策劃階段,大部分施工單位對模架部分的策劃過于簡單或僅依靠習慣。工程技術及管理人員對各種模架體系不夠了解,難以進行分析和評價。
☆ 現場不易管理
技術人員或工人依靠自身經驗進行設計、采購或租賃,然后進行加工、搭設;管理人員對工程眾多節點缺少過程控制,未能進行精細化管理。
☆ 成本難以管控
現場往往存在材料管理混亂、計劃不合理、加工不當、浪費嚴重、常常隨意堆放、周轉利用不足等情況,以致難以進行有效的成本管控。
三、解決方案
☆ 整體解決方案
通過BIM軟件自建族和參數化算法表達,實現模架的快速布置及方案調整,借助三維模架方案呈現,進而精確統計材料、輸出關鍵節點詳圖,解決現場模架深化設計及管控難題。
☆ 應用目標
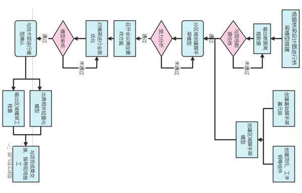
☆ 應用流程
☆ 應用方法
對平時在應用實施過程中遇到的問題進行總結,匯總出針對模架工程的應用方法,見下圖:
☆ 可視化設計方案
利用BIM技術對腳手架、工字鋼等進行建模、受力分析,提前模擬設計效果,并將不易理解的草圖模型化(從圖1到圖2),方便現場施工交底。
圖1 現場討論草圖▲
圖2 腳手架方案模型▲
☆ 創建模型,統計工程量
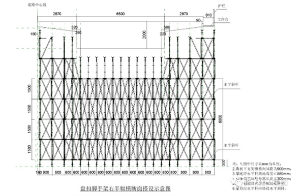
①精確創建腳手架模型(圖3)
圖3 馬棚楊互通立交模架模型(局部)
②根據方案繪制出每一根立桿、水平桿和斜桿,使其腳手架型號和工程量盡量與實際施工保持一致(圖4)。
圖4 腳手架不同搭設方案區域展示
③同時,模型中的腳手架需求量也是進行材料采購和材料堆放的主要依據。通過分區域分型號的腳手架工程量統計數據(圖5),可根據實際進度計劃,對腳手架的需求和擺放位置做到心中有數,減少腳手架材料租賃費和二次搬運的發生。
圖5 腳手架延樁號工程量統計
☆ 可調底座定位
馬鵬楊立交現澆部分橋梁因需跨越107國道,所以先搭設兩側跨度的橋梁。應用BIM技術對可調底座的位置進行定位,避免了現場模架從兩端合攏搭設出現錯位的問題,實現了模架的精準定位搭設。
步驟為:①據實獲取數據,根據一側已搭設腳手架距橋臺間距,得到已搭設腳手架的樁號位置,修正腳手架模型樁號(圖6)。
圖6 根據實際數據修正腳手架模型樁號
②推測全局,根據腳手架搭設方案,推測出所有腳手架應在的樁號位置。
③計算他側,計算出另一側腳手架距橋臺間距,提供給施工員進行放線(圖7)。
④數據校核,現場測量腳手架樁號位置,確認數據準確性。
圖7 馬棚楊互通立交可調底座定位線
☆ 工字鋼排布方案
現場工字鋼尺寸為4m,但馬棚楊互通立交現澆橋梁梁高為拋物線變徑,若全部使用標準4m尺寸,會影響橋梁美觀,但截短后的工字鋼費用會從租賃費變為材料購置費,需合理規劃工字鋼排布方案(圖8)。通過BIM技術進行工字鋼的可視化排布,在不影響橋梁美觀的情況下,給現場提供了合理的排布方案(圖9),據統計本次節約標準尺寸工字鋼14根。
圖8 馬棚楊互通立交工字鋼排布方案

圖9 馬棚楊互通立交工字鋼三維模型圖
四、經濟效益分析
1、工字鋼
3米以上工字鋼可按租賃費計算,3米以下工字鋼只能按材料費計算,通過對方案比選優化,少使用3米以下工字鋼14根,按照市場價格每根約100元計算,合計1400元。
2、桿件
通過方案優化,節省桿件5捆,按照市場租賃價格每捆500元計算,合計2500元。
3、綜合工日
準確計算各個區域工程量,通過減少一次運輸少量或超量的誤差和二次搬運來節約工期。據不完全統計節約工日約10天,按照施工經驗,每天工人數量3名,單價300元/人/工日;每天機械數量2臺,單價600元/臺/工日計算,合計21000元。
4、節約總計見下表:
五、應用總結
通過BIM技術在橋梁模架設計施工中的應用,既提高了腳手架搭設的管理和技術水平,又節省了腳手架材料的租賃量和二次搬運費用,同時三維模型也方便現場對工人進行交底,提高了施工人員的工作效率,最終也為企業積累了腳手架的搭設數據、方案和模型模板,值得推廣應用。